Final Plans in for Review!

Every time I think I’m closer to building, a new step to the process presents itself. I got the final plans last week. Submitted them and all of the paperwork for the permit for review. The review will take 2+/- weeks to review with comments back for needed updates. Feeling once again that this is never going to happen! UGH!

As of this month, it’s been a year since I sold my house, purchased this property. I am just now back to where I was in March with the previous builder. Actually further ahead when considering the fact I actually have plans and paperwork completed for the permit, plus a full budget for the project. I won’t have a timeline until the permit is granted.

Another Set of Preliminary Drawings

I got ANOTHER set of “Preliminary Drawings” from the builder. I don’t know how many different preliminary drawings I’m going to get. These have a 3D diagram of the house (below), foundation plan, floor and attic plan, sheer wall, electrical layout and energy information, cross sections, etc. To me, it seems pretty close to permit ready. They will NOW be sent off to engineering which takes a “few” weeks. I also received a bid for excavation, which was 3x what was in my head, but after talking to some other people, that’s actually what’s expected.

I started filling out the building permit. The builder recommends using a permit specialist, but I’m going to attempt to do it myself. It can’t be that hard. I’m just hoping we will be digging the foundation before the end of this year!!!

Off to Engineering and Permit Ready Plans

As of Friday, September 6th, the new plans have been sent off for engineering and permit set. This will take about 4 weeks (maybe less, but hopefully no longer than that). There are some minor changes to these plans as well.

  1. Add utility sink in garage (was already on the list, just chose the location, which is on other side of the wall from the Powder Room)
  2. Move the heater in the loft area to the other wall
  3. Remove the door in the upstairs bathroom

Contract Signed

It’s official, it’s in writing with blood, tears and some cash. I’m officially in contract with my builder for my new home! There are 5 phases to designing a home:

  1. Schematic Design – In my case, this was an approved concept.
  2. Design Development – Documenting all the updates desired for the concept plan. Completion of Preliminary Plans that include these updates. **I’m at this stage**
  3. Construction Documents – Once I review the updated Preliminary Plans and make any changes and approve, the plans get finalized into blueprints and engineered
  4. Permit/Bids – Final plans will be submitted for the building permit, getting bids for work. I am getting a bid for the excavation, external drains, driveway, utility trenches and backfill. I have to check with the Town about required water gardens, whatever those are!
  5. Construction Phase – Actual work begins with it’s own phases. I’ll cover these when it’s gets closer

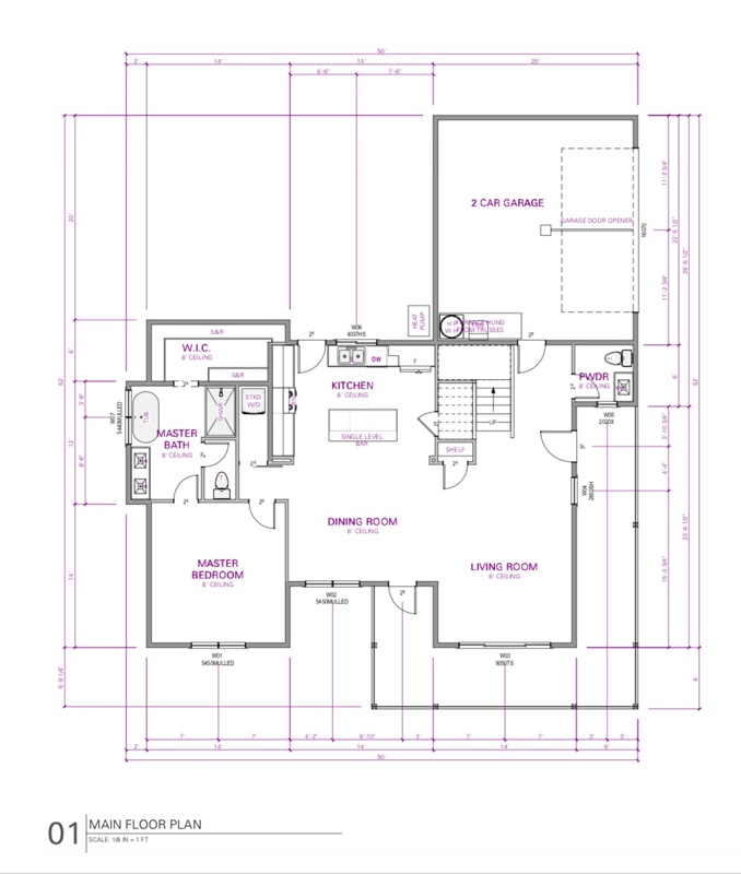
(Pre) Preliminary Plans DONE!

The final plan choice is done and I received Preliminary Plans from Lexar Homes. These are brand spankin’ new, so they are not on their website yet, but they will be part of the John Paul Collection soon. Lexar has two categories of plans: Signature and John Paul (special architect). It’s like Toyota vs Lexus or Honda vs Acura or Nissan vs Infinity…you get the idea. The Signature versions allow you to add things ala carte whereas the John Paul collection is pre-packaged with many upgrades. The price reflects these upgrades and you cannot make changes to the plans since they have the architect’s signature on them (Ego much?).

Ready to see the plan? It’s pretty perfect! The entire thing will be flipped:

This plan checks off so many boxes:

  1. Living area towards FRONT of the house (you have no idea how hard it is to find this) to take advantage of the VIEW
  2. Entry to garage on a different side of the house as the “front” door
  3. Master on 1st floor
  4. Nice size rooms
  5. 3 Bedrooms plus bonus room (this one is Loft area, which will work)
  6. 5 piece Master bath
  7. Farmhouse look w/open floor plan

Some of the modifications I will add are:

  1. 3rd bay on the garage for a shop/building/crafting space and extend depth by 2 ft
  2. Man door on back of garage
  3. Solid wall between loft and stairs (since this will be the media space, hoping that will cut down the noise between there and downstairs)
  4. Stub in electrical/water/power for that little closet by the master for a future washer/dryer when I get tired of taking my laundry upstairs
  5. Stub in water to garage for utility/dog wash/boot wash station
  6. LP gas for range (I really love cooking with gas, don’t think I can go back to electric stove)
  7. Electrical outlets under eaves for xmas lights, add outlets in garage (1 per wall is standard)
  8. Panel ready for a generator
  9. 5 Head ductless HVAC (waiting on quote, this is really important to me so I may have to cut somewhere else)
  10. Network//speaker (low voltage) wiring – I’ll do this myself over a weekend when the electrician says “go”

Pulled all the docs needed for the building permit and will start to organize that this weekend. I found someone who will review them and let me know if they look good or if I need to make changes.

And Then There Was One

I’ve narrowed my choice down to one builder. They are an on-your-lot builder. I actually had them on my list over 8 months ago but crossed them off for a few reasons.

  1. At the time, they did not have a floor plan that would work with my purchase lot.
  2. The customer must do all the site development, which includes:
  • Clearing & Excavation (remove trees, dig hole for house, external drainage, footings, trench for utilities, backfill, driveway)
  • Septic design, permit, installation
  • Temporary Utilities (Power, water, Sanican)
  • Power & Water
  • Permitting – they recommend using a permit specialist

I had hoped I could find a builder that would do the entire project. You can, but basically that’s the custom builder route. The last custom builder I was talking to could build within my budget, but once again, I was unable to find a floor plan that would work.

I’m chalking the 8 month delay up as “meant to be”. The floor plan that is the best with the on-your-lot builder is in the development/drafting stage. It did not exist until about a week ago. So, it was meant for me to be delayed so I could find the perfect plan at the right price. I sat with the pre-construction project manager for 4 hours, going over 50 million decisions on the house. I learned I have good taste because everything I “want” is an upgrade. The most important things to me are the floor plan taking advantage of the view, meeting architectural guidelines, not giving up what I had in my last house, energy efficiency and mechanics (electrical, plumbing, HVAC).

For now, it’s back to waiting for the plans to be finalized and pricing (which I never got from the first builder). My goal is to submit the preliminary plans for design review to meet historical architectural guidelines along with the building permit by the end of this month. I’m most likely prepping the paperwork myself as permit folks are backed up with work. I know how to fill out forms and follow directions. It will be a pain, but it will save me about $1500-2000 doing it myself.

:: rolls up sleeves ::

Hopeful Timeline:

  • Design Review and Building Permit submitted by September 1st
  • Approved Design Sept. 16th
  • Approved/Granted Building Permit by November 1st
  • Foundation December
  • Framing in January
  • Move in August/September by next year (which still feels SO FAR AWAY!)

Time Keeps on Slippin’

Time keeps on slippin’, slippin’, slippin’
Into the future
Time keeps on slippin’, slippin’, slippin’
Into the future

I want a home on the bluff,
View of the sea
Stand like a fir tree
Let my new home anchor me…

The weeks just keep ticking on by. I got basic pricing from the local custom builder. I need to keep the house at 1800 square feet, 600 sq ft garage, concrete pad in front of the garage and concrete porch at front door in order to fit it within my budget. I’m fine with that, I’m just anxious about getting a floor plan that will work.

I met with the franchise builder and spent over 2 hours looking at floor plans, flipping them around. The final candidates are two modern farmhouse plans with some modifications. For the first one, the cons are that I lose my 5 piece master bath and the master bedroom is upstairs. Otherwise, this plan would work if it was flipped, enclose the breezeway to make it a laundry/mud room, close off the external door by the dining room and add french doors to the front of the living room:

Willow - Lexar HomesWillow – Lexar Homes

A second plan they have would also work, but it’s currently a 2900 square foot house. It is 5 bedrooms, plus a family room. I only need 3 bedrooms plus a bonus room. Their architect is creating a version of this house with a smaller upstairs and I should have a concept of it next week. It’s almost perfect. Living room faces the view, Master downstairs, has a 5 pc master bath, garage in the rear of the house and side entry. Crossing fingers it will work!

I’ve been struggling with feeling down about this project this week. I really miss having my own space. Since I had to start over at the planning stage, though, I will have patience. Until then…time keeps on slippin’ slippin’ slippin’…..into the future….

Shed & Builder Update

I got my shed delivered this week! Buildings 200 square feet or less do not need a permit, so I purchased a 10 x 20 shed. I added full height walls with a barn roof giving me added height. It has two lofts inside for storage as well. My belongings are in two 10 x 10 storage units so my hope is to move my stuff to the shed and save money on storage fees. Once the house is done, I will have a nice garden shed. I’ll add windows to the shed and electrical. I love the color. It will fit in nicely with my modern farmhouse.

Builder Update: I emailed my first builder this week and asked him to stop all work on my project. I was very disappointed with his one line response of “ok, we’ll stop everything”. After working with him for 8+ months, I had hoped for a better explanation of why the project never got started and/or an apology that it didn’t work out. Seems that is basic customer service. It’s probably better to stop now, than to be in the middle of the project and have major issues. Moving on!

I reached out to two builders. The first is a local, family owned business that builds 50-60 homes per year. My next step with them is to call the references they provided and get a concept floorplan that I like and will fit into my budget.

The second builder is a franchise “on your lot” builder. They have floorplans available to choose from, but none of them work for me. The sales guy said they have a couple new modern farmhouse plans that are in development right now that might work. I’m meeting with him on Monday to take a look.

The goal this week is to have a solid concept from each builder with a budget to choose from. Then I’ll write out my pros and cons between the two and make a decision. The franchise has good reviews on the product, but customers told me they take a long time to build, like 12-14 months. Given that I’m starting over, I don’t want to wait that long.

Franchise builder – Pro for them is the cost per square foot is a lot less. Con is the time to build and the fact they don’t have a floorplan that works out of the box.

Family owned builder – Pro is they know the community and familiar with the architectural requirements AND the timeline to build is a lot less (6 to 8 months). I prefer to support a family business, but I don’t want to put all my eggs in one basket. Con is the cost per square foot is a lot higher, but I’ll have to weigh out the quality of each to see if that’s really a con.

Buying Plans

Lesson of the week – I found plans online months ago, fell in love and found a builder who told me he could build it within my budget. I had them modified to my dream home at the cost of $4100 plus $1700 for engineering (apparently beams are expensive).

What you are SUPPOSED to do is to get general bids to build a home based on concept drawings. Once you find a plan you like AND have a few WRITTEN bids from builders that fit your budget, THEN buy the plans.

This was an expensive lesson. About as expensive as paying off a boyfriend’s court fees (yeah, learned that lesson too). Now, I’m in the grief cycle of letting go of a home I have stared at, talked about, shared, mentally toured and imagined having my morning coffee in. Currently cycling through anger and depression every couple of hours.

I WILL find a home that fits for us and we will love it. I’m NOT giving up, though in the depression cycle, it’s tempting!